您的位置: 中国幕墙网 > 节能专区 > 新闻正文
 

玻璃幕墙与 建筑节能

来源:中国幕墙网收集整理  作者:张芹  日期:2005-12-8
页面功能 [字体: ] [ 打印 ] [ 投稿 ] [ 评论 ] [ 转发 ] [ 啄木鸟 ]
 
 

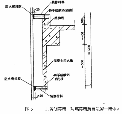
图7 非透明幕墙—玻璃幕墙后置保温隔热层

上一页123下一页

门窗幕墙第一手资讯! 上中国幕墙网 news.alwindoor.com 手机访问地址 3g.alwindoor.com
上一篇:如何贯彻《公共建筑节能设计标准》
下一篇:学习《公共建筑节能设计标准》(修订版)(一)    
【回到顶部】
 
 
  为了广泛征集行业新的研究成果,活跃学术气氛,充分发挥专家学者和广大科技工作者的积极性和创造性,铝门窗幕墙委员会每年年会期间,都会...
[正文][评论]
 
 
 
 

中国幕墙网版权和免责声明

版权声明: 本网站所有文章版权,归中国幕墙网和作者所共有,未经允许请勿转载。

转载要求: 转载的图片或者文件,链接请不要盗链到本站,且不准打上各自站点的水印,亦不能抹去本站水印。

隐私条款: 除非特别声明,否则文章所体现的任何观点并不代表中国幕墙网。
本站转载或引用文章若涉及版权问题请与我们联系,我们立即将其删除!

月精彩评论集锦
  • 工艺写的不错?值得推行;不过:现在河南安阳地区地方工程质量监督站不让先塞口,仍然坚持塑钢窗安装后赛口的要求,不让先赛口,这样对吗?
    来自 125.42.41.204 的水上人间对塑钢门窗安装的两种工艺优劣比较的评论
  • 说到胶关键还是要看品质,价格,价格优惠,质量又不错,南玻是国内玻璃行业的老大哥吧,之江,中原,白云,都有用,但不是他主要用的,主要用的胶是广州耐奇的胶,四大工厂都在用,东莞达百分之六十,吴江达百分之四十。
    来自 114.218.165.6 的读者对深度剖析:2007年度建筑用胶类认定产品横向对比的评论
  • 我认为江苏润泰的胶整体不错,还通过结构胶的认证及耐候胶的行业推荐,公司实力很强,值得拥有......
    来自 117.81.222.2 的读者对2010年度“建筑用硅酮结构密封胶”产品展播的评论
  • 港玖的硅酮胶也很不错,到我门店推销过,我测试过他的产品。色泽好,光洁度好,拉力也很好,结构性很强。就是名气小,哈哈^_^
    来自 116.226.66.244 的读者对2010年度“建筑用硅酮结构密封胶”产品展播的评论
  • 中国就是有钱啊~~~一造就造一大片,造的就是顶级的。。。中国的好多地方温饱都没解决呢。。把这钱分摊一下多好啊!
    来自 60.179.103.82 的年轻的恺撒对北京奥运将成全球玻璃幕墙亮点的评论
  • 感觉还是广东胶好点,尤其是新展、金叶等性价比很高,供参考。
    来自 122.90.121.60 的读者对2011-2012第七届中国幕墙网大型读者调查活动的评论
  • 有机硅密封胶分很多种,如建筑行业,民用,汽车行业等,每个行业的要求都有所不同,每家生产企业涉及的领域的侧重点又有所不同,不知大家所谓的好是好在哪里?差又差在哪里?与谁比较?个人从事胶粘剂应用行业多年,凭心而谈,个人觉得建筑工程胶类品牌白云,创世纪,大光明,硅宝的行业口碑都不错,民用胶嘛,新展,千里马,之江的市场知名度较高。呵呵,仅供参考哦。谢谢!
    来自 180.117.195.94 的读者对2010年度“建筑用硅酮结构密封胶”产品展播的评论
  • 金工价格是高,性能一般.我厂信赖意大利品牌安美百事达
    来自 221.236.157.138 的读者对加工中心对比专题——对您的采购提供数据支持的评论
知识百科
月热点新闻推荐
月企业关注度排名
月产品人气值排名
客服电话:400-60-54100  传真:0832-2201099 销售值班电话:15023154960